| 状态: | |
|---|---|
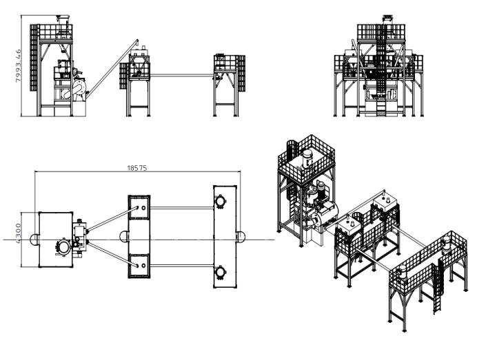
产品描述
Starsplas 生产专门为 PVC 或 WPC 塑料行业的混合车间设计的自动混合系统。该封闭系统用于各种粉末、颗粒和液体挤出物的自动计量、加料、混合和喂料。它节省了劳动力并防止员工直接接触粉末。
1.自动上料系统-无人值守
SPC PVC 自动混合解决方案专为 PVC 或 WPC 塑料行业的混合车间而设计。该密闭系统用于各种粉体、颗粒、液体的自动计量、加料、混合、投料。它可以节省劳动力并防止与粉末直接接触。
2. 中央集尘系统-无尘
PVC、WPC塑料行业混料车间粉尘较多,工人流动性大。当采用中央供料系统时,我们选择将除尘器与产尘口连接,以便这部分可以收集和回收。无尘车间不仅是现代工业标准,而且可以节省大量的材料和劳动力。
3、中央控制系统——智能化
智能控制系统避免了人工操作带来的失误和损失,如投料配方错误导致批次不合格、二次加工浪费等。缺乏自动喂料功能会导致填充不足,从而损坏螺杆和挤出机。关键是缺乏根据产量计算材料的自动化系统。
| 成分 | 力量 | ||||||
| 加热/冷却混合器组合 | 245千瓦 | ||||||
| PVC&CACO3自动配料称重系统 | 18.5千瓦 | ||||||
| 自动添加剂称重系统 | 7.8千瓦 | ||||||
| 添加除尘系统 | 1.5千瓦 | ||||||
广泛应用于化工、电池原料、涂料、染料、农药、医药、食品、饲料、添加剂、新型耐火材料、电子、塑料、陶瓷、化肥、冶金、矿山、干粉砂浆、EPS、特种建材等行业粉末、固体粉末液体混合物。

问答
1、搅拌机如何保养?
①.必须按照设备的操作规程进行,这才是对设备的良好维护。
②.添加混合物前应注意设备正常启动后,应按要求的顺序缓慢添加。
③.准备好密封圈、联轴器的橡胶圈、橡胶圈、V带和滚动轴承。这些部件的工作部件很容易出现故障。必要时应及时更换,定期(一般在一季度)检查紧固件是否松动,检查V带安装的松紧程度,并对设备各部位进行清理、清理。
联系信息
WhatsApp:+86 19962650268
电话:+86 19962650268
微信:+8619962650268
邮件:eve@starsplas.com
产品展示图



